







继电器有晶体振荡器、分频器、整定开关、驱动电路和电源回路等组成。当继电器施加额定电压时,继电器内部瞬动继电器和两个延时继电器瞬时动作,触点切换,并使电源回路与计时回路处于失电状态,以提高继电器抗干扰性能。当输入电压大大降低或完全消失时,瞬动继电器瞬时返回(两个延时执行继电器仍处于动作状态),触点也瞬时返回,使储能电源接通计时回路,晶体振荡产生时钟脉冲,经分频后得到10ms计时脉冲,计数器对计时脉冲计数,当所计脉冲数与整定开关值符合时,驱动执行继电器返回,完成断电后延时返回的功能。原理图如下图所示


1、额定电压:交流380、220、110、100V。
2、额定频率:50HZ或60HZ。
3、保证继电器触点可靠通电动作所需电压不大于80%额定电压。
4、保证继电器可靠断电返回的电压不小于10%额定电压。
5、在额定电压下继电器断电延时返回的延时误差,在整定范围内不超过0.1%整定值+10ms。
6、在额定电压下继电器断电延时的变差不超过0.1%额定值+10ms。变差是指继电器在同一时间整定点上测量五次,实测时间的较大值与较小值之差。
7、二付延时返回的触点可各自独立整定,时间整定范围均为0.02-9.99s,而延时整定值可以不同或相同。
8、在额定电压下继电器消耗的功率不大于4VA。
9、继电器允许长期承受110%额定电压。
10、继电器在电压不大于250V、电流不大于1A(时间常数T = 5 ± 0.75ms直流有感电路中),触点断开容量为30W,在电压不大于250V,电流不大于1A,功率因素COSφ=0.4±0.1的交流电路中,触点断开容量为150VA。
11、继电器各电路与外露的非带电金属部分之间应能乘受有效值2kV,输入电路和触点之间 应能承受1kV,50HZ交流电压,历时1min实验,应无绝缘击穿或闪络现象。
12、继电器机械寿命105次,电寿命104次。
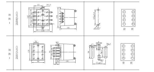
JHS(JSJ)-10型继电器采用凸出式固定结构,其外形尺寸及安装开孔尺寸详见附图1。

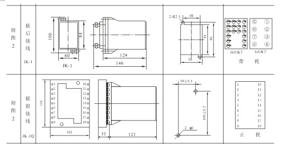
JHS(JSJ)-20型继电器采用凸出式插拨结构,其外形尺寸及安装开孔尺寸详见附图2。

JHS(JSJ)-30型继电器采用嵌入式插拔结构,其外形尺寸及安装开孔尺寸详见附图3。
